BCL Engineering Ltd - PROVIDING MUNICIPAL ENGINEERING SERVICES FOR OVER 40 YEARS
  • BCL
  • services
    • Water Supply & Treatment
    • Wastewater Treatment
    • Land Development
    • Transportation and Roads
    • Solid Waste
    • Buildings & Municipal Services
    • Surveys
    • Electrical Engineering
    • Storm Water & Drainage
  • Projects
  • Careers
  • Contact

Village of Lebret 

VILLaGE oF LEBRET aND STaR BLaNKET
​JoINT USE FaCILITY 

Picture

Village of Lebret   
​Project Value: $2,800,000 
​Date Completed: Summer 2021 (ongoing)

Picture

PRoJECT BaCKGRoUND

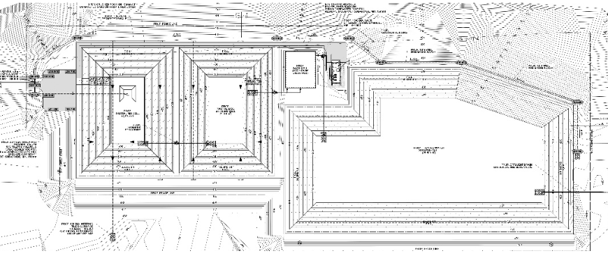
BCL has completed preliminary assessment, design and tendering of a new joint use shared wastewater system for the communities of Lebret and Star Blanket First Nation. Due to the location within the Qu’Appelle Valley, the system was required to meet the new WSER regulations. Challenged with a limited land mass for a new system and proximity to existing development BCL completed a DUIS study to determine effluent targets and selected a system using two partial mix deep aerated settling cells followed by a SAGR system and clean water storage pond.

Design includes a new wet style submersible pumping station and and force main to convey wastewater to the new site. An aeration building houses two 10 hp blowers and includes systems for Alum addition, mixing manholes and pumping systems to recirculate SAGR effluent to the front end of the system for further removal of nitrogen. The clean water storage cell provides flexibility for seasonal discharges during warm weather months and means to prove effluent quality prior to release.

The system is designed with adequate capacity to accommodate future community expansion and regulatory changes for phosphorus and nutrient removal. ​
Picture
Picture
Picture
Picture

PRoJECT HIGHLIGHTS

  • ​Optimization of existing cells - Two new aerated primary treatment cells
  • New aeration building 
  • Automated access and security system and
  • 60kw solar power system ​​
Picture

Services Provided

  • Preliminary Assessment - Preliminary Design
  • Downstream Use Impact Study
  • Detailed design
  • Community Engagement and Zoning Approval Support
  • Tendering
  • Resident Engineering
  • Contract Admin ​

PROVIDING MUNICIPAL ENGINEERING SERVICES FOR OVER 40 YEARS

Picture
Phone: 306.477.2822
​Email: [email protected]
200 - 302 Wellman Lane
Saskatoon, SK
S7T 0J1
  • BCL
  • services
    • Water Supply & Treatment
    • Wastewater Treatment
    • Land Development
    • Transportation and Roads
    • Solid Waste
    • Buildings & Municipal Services
    • Surveys
    • Electrical Engineering
    • Storm Water & Drainage
  • Projects
  • Careers
  • Contact