ISC PROJECT No. AUP12
PRoJECT FEATURES
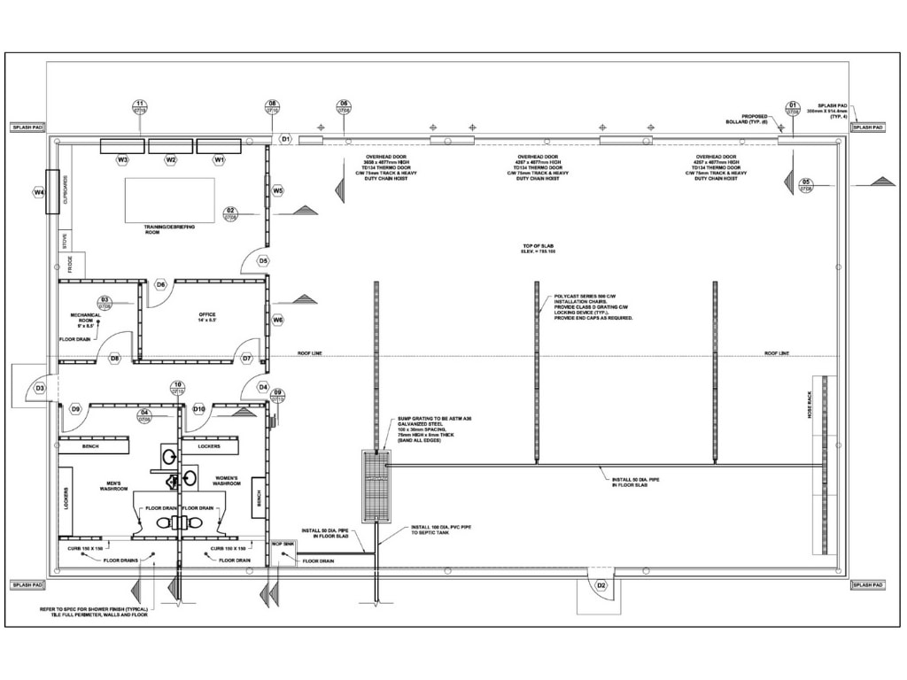
- New 418 m2 single-story building, comprised of:
- 302 m2 three vehicle bay garage space
- 116 m2 of dedicated staff space, including office, kitchen / training area and handicap accessible washroom facilities with lockers, bathrooms, and showers
- Engineered steel building structure with brick exterior and screw pile foundation
- Utility connections (water, sewer, power) and site work including 2,570 m2 gravelled parking area and fenced security compound











